Orientační nabídka


Menu

Sociální sítě


Vyhledávání


Cesta: Titulní stránka > Město Kopřivnice

 

Administrativní budova č. p. 1163 na ul. Štefánikově v Kopřivnici

 

 
 
Budova č. p. 1163

























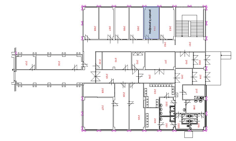
  • kancelář č. 2104 v 1. NP o výměře 18,20 m2
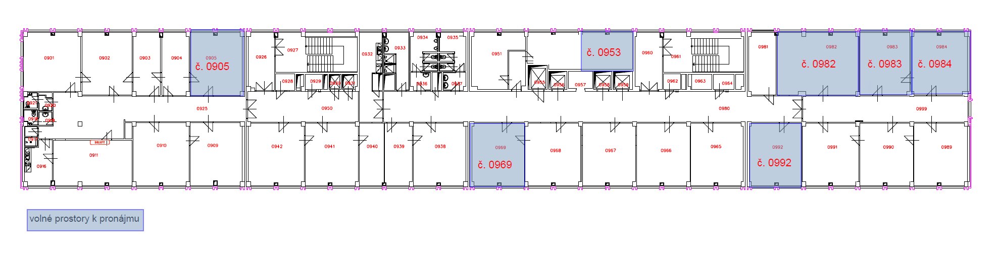
  • kancelář č. 0905 v 9. NP o výměře 32,27 m2
  • kancelář č. 0969 v 9. NP o výměře 32,36 m2
  • kancelář č. 0982 v 9. NP o výměře 50,20 m2
  • kancelář č. 0983 v 9. NP o výměře 31,07 m2
  • kancelář č. 0984 v 9. NP o výměře 33,67 m2
  • kancelář č. 0992 v 9. NP o výměře 33,80 m2
  • kancelář č. 1003 v 10. NP o výměře 33,60 m2
  • kancelář č. 1004 v 10. NP o výměře 31,97 m2
  • kancelář č. 1009 v 10. NP o výměře 66,84 m2

9. NP1. NPč. p. 1163-2







Bližší informace Vám poskytne na Odboru majetku města paní Mgr. Lucie Lojková,  kancelář č. 0883 v 8. NP objektu č. p. 1163/12 na ulici Štefánikově v Kopřivnici, telefonní č. 556 879 651, 734 396 983, lucie.lojkova@koprivnice.cz.
 
Zodpovídá: správce
Vytvořeno / změněno: 23.11.2022 / 23.11.2022
 

 

Kontakt

Město Kopřivnice
Štefánikova 1163/12
742 21 Kopřivnice

Tel.: +420 556 879 411
E-mail: posta@koprivnice.cz

Podrobný kontakt


Úřední hodiny

  • Po: 8:00 - 11:30, 12:30 - 17:00
  • Út: 8:00 - 11:30, 12:30 - 14:00
  • St: 8:00 - 11:30, 12:30 - 17:00
  • Čt: 8:00 - 11:30, 12:30 - 14:00
  • Pá: 8:00 - 10:00 (pokladna), 8:00 - 11:30 (pouze informace, podatelna a Czech POINT)

Navštivte také

    Zpracováno v rámci dotačního projektu: "Kvalitní úřad Kopřivnice",
    reg. č. CZ.03.4.74/0.0/0.0/19_109/0016783
    logo EU 
    Lašská brána Beskyd

Nyní jste v módu "Bez grafiky". Přepnutím do grafického módu zobrazíte standardní verzi webu.

Informace v patě

  • Aktualizace obsahu: 17.4.2026
  • Počet přístupů: 5722079 (od 18.10.2022)

web & design WEBHOUSE®, redakční systém vismo®

Tento web pro svoji správnou funkci využívá soubory cookies.

O cookies

Nastavení cookies

Tento web pro svoji správnou funkci využívá soubory cookies.

Více o cookies

Tyto soubory nám umožňují poskytnout návštěvníkům kvalitnější služby, protože nám například umožní získat anonymizované analytické údaje o používání tohoto webu.

Kompletní přehled cookies, které tento web využívá naleznete zde.

Skupiny cookies