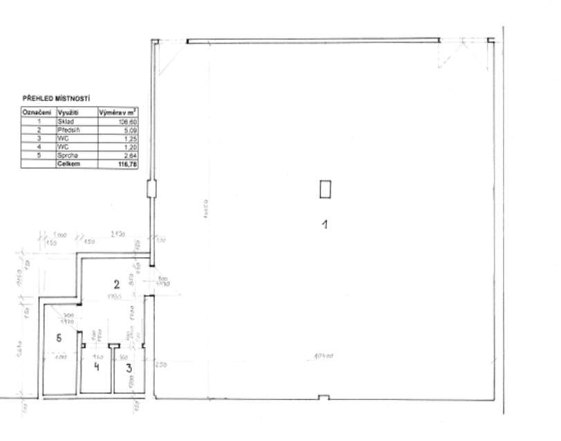
Nebytové prostory o celkové výměře 108,14 m2 umístěné v 1. PP objektu
občanské vybavenosti č.p. 890, který je součástí pozemku parcelní č. 101
v k.ú. Kopřivnice na ulici Školní v Kopřivnici.

Bližší informace Vám poskytne na odboru majetku města Dana Mašová,
tel. č. 556 879 694, dana.masova(zavináč)koprivnice.cz.